Company building Zombie-proof shelters:

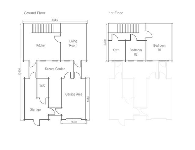
The ZFC-1 comprises of three sections, all of which are independent from each other with two lockable doors securing each building. This means for a zombie to breach the main large section they would have to somehow breach three very securely locked doors - which even your most advance lock picker would struggle to compromise. One of the smaller buildings is a garage with secure roller shutter doors - still large enough to secure a military vehicle or getaway car. The other building comes with a built in storage unit for food to help you last the duration of the apocalypse. There is also a great place to store any other weapons you require to keep the undead at bay. The third larger building at the back has two floors (containing a bedroom, a kitchen, a living room and even a gym) as well as an upper deck to give you a 360 degree vantage point with smart slots in the decking wall to allow you to shoot at intruders in the surrounding area. In the middle of the three buildings protected by walls around the outside and a mesh roof is a small garden to allow you some outdoor time and to plant and grow vegetables.










Bookmarks